Engineering & Technical Drawings - Cad Drawing Store
The CAD Drawing Store offers a comprehensive collection of engineering and technical DWG files, giving you an easy, efficient, and professional drawing experience. With a diverse range of 2D and 3D AutoCAD drawings, we provide the essential support you need for high-quality outputs and faster production. This category includes CAD blocks and detailed files for plumbing plans, AutoCAD electrical drawings for buildings, structural detail DWG files, HVAC AutoCAD drawings, and firefighting system plans—all designed to meet professional drafting and safety standards. Whether you need precise plans or elevations, our library ensures accuracy, clarity, and ease of use. Our engineering and building services CAD drawings are best-in-class, helping architects, engineers, and technical professionals achieve detailed, compliant, and production-ready designs. With our extensive selection, you can quickly find the right file for your project, ensuring both quality and detail every time.
Basement Plumbing Ceiling-Suspended Pipe Support DWG Detail
This Autocad drawing provides a comprehensive detail of ceil ...
Catch Basin Construction Drawing - AutoCAD Detail
This Autocad drawing provides a comprehensive detail of a ca ...
Catch Basin Detail DWG- RCC Inlet-Outlet Construction Plan
This Autocad drawing provides a comprehensive detail of a ca ...
Harvesting Pit Detail AutoCAD Drawing with Sections and Specs
This AutoCAD drawing provides a comprehensive detail of a ha ...
Hotel Guest Toilet Plumbing Free CAD- Water Supply & Drainage Details
This AutoCAD DWG drawing provides a detailed layout of hotel ...
Inspection Chamber CAD Block with Plumbing Details
This Autocad free DWG file offers a detailed drawing of an I ...
Manhole Detail DWG with Plumbing - Free AutoCAD Download
This free AutoCAD DWG drawing provides a detailed view of a ...
Public Toilet Design Autocad- Plumbing Details and Legend
Discover the detailed Autocad drawing of a Public Toilet lay ...
Rainwater Khurra Detail with Pipe Installation - CAD Drawing
This Autocad drawing provides a detailed design of a rainwat ...
Road Gully Chamber CAD Drawing with Construction Details
This Autocad drawing of a road gully chamber offers a compre ...
Storm Water Chamber CAD Details Plans, Sections, and Specs
This Autocad drawing provides a comprehensive detail of stor ...
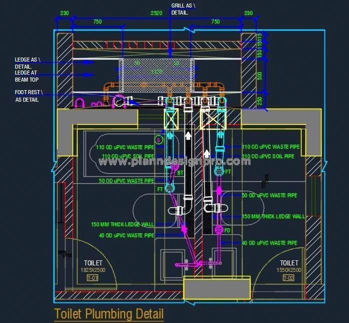
Toilet Plumbing CAD Drawing with Drainage System Details
This Autocad drawing provides a comprehensive plumbing detai ...
Underground Water Tank DWG- Detailed Design for Township Projects
This AutoCAD DWG drawing provides a comprehensive design for ...
Waste Water Drain Detail - Autocad Drawing with Specs
This Autocad drawing provides a comprehensive detail of a 25 ...
Architectural House Plan and Structure Drawing (30'x60') DWG
Explore this comprehensive AutoCAD DWG drawing of a builder ...





